Free account required
25
Free account required
$980,900 List $980,900 Terminated
Terminated 713 days ago
10 Wilby Cres, #103
· 3
· 2
· 1
· 1000-1199
Listing History
Buy/Sell/Terminated/Expired listing history for 10 Wilby Cres, #103
Key Facts
Key facts for 10 Wilby Cres, #103
Property Type
Condo, 2-Storey
Parking
Underground 1 garage, 1 parking
MLS #
W6008357
Size
1000-1199 sqft
Basement
None
Listed on
2023-04-04
Lot size
-
Tax
-
Days on Market
919
Approximate Age
New
Maintenance Fee
$646/mo Common Elements, Par...
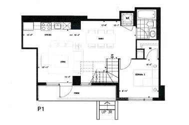
Description
A Fantastic Opportunity For A Growing Family! "The Humber"Condominium. Beautiful New Building! Expected Occup Summer 2023! A Spacious 3Bd, 2 Storey Townhome 1129 Sq.Ft With South View, Outdoor Porch And Balcony.Steps To Weston Go Station, 401,400 & 427. 15 Min. To Union,4 Min. To Bloor, 12 Min. To P...earson Via Up Express. Future Eglinton Lrt 2023! Close To Shops, Parks, River Trails And Bicycle Paths.Builder Offering Many Incentives,A 5% Deposit Program. **** Extras **** Options Ready Program Access 15% In Down Payment Support.Waived Development Charges And Levies. Upgrades Included, One Free Parking Space And One Free Locker. Equipped With 5 Appliances, Ss Fridge,Stove,Dishwasher,Hood Fan, Washer & Dryer.
Similar Properties (No results)
Room Types
2nd Br
W/O To Balcony, Closet, South View
Dimensions 9.09 x 8.99 feet
81.72 sqft
3rd Br
W/I Closet, South View
Dimensions 10.17 x 9.09 feet
92.45 sqft
Dining
Combined W/Kitchen, Open Concept, Laminate
Dimensions 13.58 x 16.08 feet
218.37 sqft
Courtesy of: BAKER REAL ESTATE INCORPORATED, BROKERAGE